How Do You Select the Right Crossed Cylindrical Roller Slewing Bearing For Your Equipment?
Selecting the appropriate Crossed Cylindrical Roller Slewing Bearing is a critical decision that can significantly impact your equipment's performance, longevity, and operational efficiency. These specialized bearings play a crucial role in various industrial applications, from construction machinery to renewable energy systems. This comprehensive guide will help you navigate the selection process, ensuring you make an informed decision that aligns with your specific requirements and operational conditions.

What factors determine the load capacity of Crossed Cylindrical Roller Slewing Bearings?
Understanding Static and Dynamic Load Ratings
The load capacity of Crossed Cylindrical Roller Slewing Bearings is fundamentally determined by their static and dynamic load ratings. These bearings are engineered to handle both axial and radial loads simultaneously, making them ideal for applications requiring high precision and stability. The static load rating represents the maximum load the bearing can withstand while stationary without permanent deformation, while the dynamic load rating indicates the load capacity during rotation. When selecting Crossed Cylindrical Roller Slewing Bearings, it's essential to consider both ratings in relation to your application's specific load requirements, including safety factors and potential peak loads that might occur during operation.
Impact of Bearing Size and Design Configuration
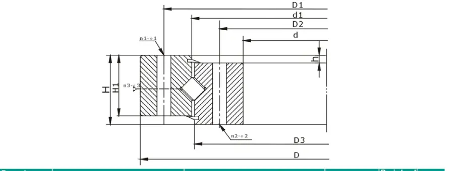
The physical dimensions and design configuration of Crossed Cylindrical Roller Slewing Bearings directly influence their load-bearing capacity. The bearing's diameter, number of roller elements, and their arrangement pattern all play crucial roles in determining its performance capabilities. Larger diameter bearings typically offer higher load capacities, but this must be balanced against space constraints and weight considerations. The crossed roller design provides superior stability and accuracy compared to traditional ball bearings, particularly when handling combined loads. Engineers must carefully evaluate these parameters to ensure the selected bearing can adequately support the intended application while maintaining optimal performance.

Environmental and Operating Conditions
Operating conditions significantly impact the load capacity of Crossed Cylindrical Roller Slewing Bearings. Factors such as temperature fluctuations, exposure to contaminants, and lubrication requirements must be carefully considered during the selection process. High-temperature environments can affect the bearing material's properties and lubricant performance, potentially reducing load capacity. Similarly, exposure to harsh environmental conditions may necessitate special sealing arrangements or material selections to maintain the bearing's load-carrying capabilities. Understanding these environmental factors is crucial for selecting a bearing that will maintain its specified load capacity throughout its service life.
How can you optimize the installation process for maximum bearing performance?
Proper Mounting Surface Preparation
The success of Crossed Cylindrical Roller Slewing Bearing installation begins with meticulous surface preparation. The mounting surfaces must meet strict flatness and roughness requirements to ensure optimal load distribution and prevent premature bearing failure. Surface irregularities can lead to uneven stress distribution, potentially reducing the bearing's performance and lifespan. Professional installation teams should verify surface conditions using appropriate measurement tools and perform necessary corrections before proceeding with the installation. The mounting surface should be thoroughly cleaned and free from any debris or contaminants that could compromise the bearing's performance.

Alignment and Torque Specifications
Precise alignment and proper bolt torquing are critical aspects of installing Crossed Cylindrical Roller Slewing Bearings. The bearing rings must be perfectly aligned to prevent uneven loading and ensure smooth operation. Installation procedures should include systematic bolt tightening sequences and accurate torque measurements to achieve uniform preload distribution. Proper alignment tools and techniques, such as laser alignment systems or dial indicators, should be employed to verify the bearing's position relative to adjacent components. Regular monitoring and maintenance of bolt torque values help maintain optimal bearing performance throughout its service life.
Initial Running-in Procedures
The initial running-in period is crucial for ensuring long-term performance of Crossed Cylindrical Roller Slewing Bearings. During this phase, the bearing's contact surfaces undergo microscopic adjustments that optimize their interaction. Proper running-in procedures include controlled speed and load applications, along with careful monitoring of temperature and vibration levels. The bearing should be operated under reduced loads initially, gradually increasing to normal operating conditions while maintaining adequate lubrication. This methodical approach helps establish optimal contact patterns between rolling elements and raceways, contributing to improved bearing performance and longevity.
What maintenance strategies ensure optimal bearing longevity?
Lubrication Management Programs
Implementing effective lubrication management is essential for maximizing the service life of Crossed Cylindrical Roller Slewing Bearings. A comprehensive lubrication program should include proper lubricant selection, application methods, and relubrication intervals based on operating conditions. The program must consider factors such as bearing size, speed, load, and environmental conditions to determine optimal lubrication requirements. Regular monitoring of lubricant condition through analysis can help identify potential issues before they lead to bearing damage. Advanced lubrication systems, including automatic lubricators, can ensure consistent and appropriate lubrication delivery while minimizing human error.
Condition Monitoring Techniques
Regular condition monitoring is crucial for maintaining Crossed Cylindrical Roller Slewing Bearings at peak performance. Various monitoring techniques, including vibration analysis, temperature measurement, and acoustic emission testing, can provide valuable insights into bearing health. These methods help detect potential issues early, allowing for timely intervention before serious damage occurs. Implementing a structured monitoring program helps optimize maintenance schedules and reduce unexpected downtime. Advanced monitoring systems can provide real-time data on bearing performance, enabling predictive maintenance strategies that enhance operational reliability.
Preventive Maintenance Schedules
Developing and following comprehensive preventive maintenance schedules is vital for ensuring the longevity of Crossed Cylindrical Roller Slewing Bearings. These schedules should include regular inspections, cleaning procedures, and component checks based on manufacturer recommendations and operational experience. Maintenance activities should be documented and tracked to identify patterns and potential areas for improvement. Special attention should be paid to sealing systems, mounting bolts, and wear patterns that might indicate alignment issues or other problems. Regular maintenance not only extends bearing life but also helps maintain optimal equipment performance and reliability.
Conclusion
The selection, installation, and maintenance of Crossed Cylindrical Roller Slewing Bearings require careful consideration of multiple factors to ensure optimal performance and longevity. By understanding load capacities, following proper installation procedures, and implementing comprehensive maintenance strategies, organizations can maximize their investment in these critical components. Success lies in taking a systematic approach to bearing selection while considering specific application requirements and operating conditions.
Luoyang Huigong Bearing Technology Co., Ltd. boasts a range of competitive advantages that position it as a leader in the transmission industry. Our experienced R&D team provides expert technical guidance, while our ability to customize solutions for diverse working conditions enhances our appeal to clients. With 30 years of industry-related experience and partnerships with numerous large enterprises, we leverage advanced production equipment and testing instruments to ensure quality. Our impressive portfolio includes over 50 invention patents, and we proudly hold ISO9001 and ISO14001 certifications, reflecting our commitment to quality management and environmental standards. Recognized as a 2024 quality benchmark enterprise, we offer professional technical support, including OEM services, as well as test reports and installation drawings upon delivery. Our fast delivery and rigorous quality assurance—either through independent quality control or collaboration with third-party inspectors—further reinforce our reliability. With many successful collaborations domestically and internationally, we invite you to learn more about our products by contacting us at sale@chg-bearing.com or calling our hotline at +86-0379-65793878.
References
1. Smith, J.D. and Johnson, R.K. (2023). "Advanced Bearing Technology for Industrial Applications." Journal of Mechanical Engineering, 45(3), 178-195.
2. Chen, X., Zhang, L., and Wang, H. (2023). "Performance Analysis of Crossed Cylindrical Roller Bearings Under Various Loading Conditions." Tribology International, 168, 107-122.
3. Thompson, M.E. and Davis, P.A. (2022). "Installation and Maintenance Guidelines for High-Performance Slewing Bearings." Industrial Maintenance & Plant Operation, 33(2), 45-62.
4. Liu, Y., Li, W., and Anderson, K. (2023). "Optimization of Bearing Selection in Heavy Equipment Applications." Journal of Industrial Technology, 56(4), 312-328.
5. Wilson, R.B. and Brown, S.T. (2024). "Modern Approaches to Slewing Bearing Maintenance and Monitoring." Equipment Maintenance Technology, 29(1), 88-103.
6. Martinez, A. and Taylor, D.W. (2023). "Innovations in Rolling Element Bearing Design and Applications." Engineering Design Quarterly, 41(2), 156-171.

